Jump to content

Recommended Posts

Posted

At the SoHa lake house again this weekend  and see they just broke ground for the new fish cleaning station that should be done sometime in July;

Again it will be a public cleaning station for paid to launch  or non paid to launch people.

562CE51C-6D14-4164-80E0-D9830DB3A7F3.jpeg

3BC550D5-F199-43B6-8E90-D6CEDE26AD51.jpeg

  • Like 1
Posted

Here’s preliminary design; 4 stations on each table with disposal on each table; back table also has a 5th handicap accessable station.

Basically same as St Joe except twice as many tables.

St Joe was similar to Holland and SoHa is very similar.

 

849836C0-9BE6-4159-A057-895D99443427.jpeg

3E94FE56-0876-4676-B102-397BE14AF4FB.jpeg

  • Like 2
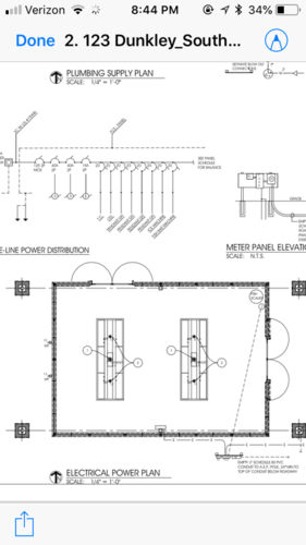
Posted

Got final design from Kate; 6 stations on each table; each table has a grinder/disposal and two gfci receptacles hanging from the ceiling. And, like St Joe a descaler machine in tbe corner for pan fish.

A12C6E31-8FCC-45C3-9B9F-1EC10F3749DF.png

  • Like 1

Create an account or sign in to comment

You need to be a member in order to leave a comment

Create an account

Sign up for a new account in our community. It's easy!

Register a new account

Sign in

Already have an account? Sign in here.

Sign In Now
  • GLF_appStore.jpgGLF_googlePlay.jpg


    Recent Topics

    Hot Topics


    Upcoming Events

    No upcoming events found
×
×
  • Create New...